
Zatékání/vzlínání vlhkosti v krovech
Ahojte,
chtěl by jsem se s Vámi poradit o problému se zatékáním nebo vzlínáním vody v podkorví domu.
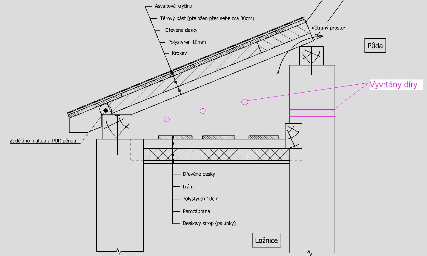
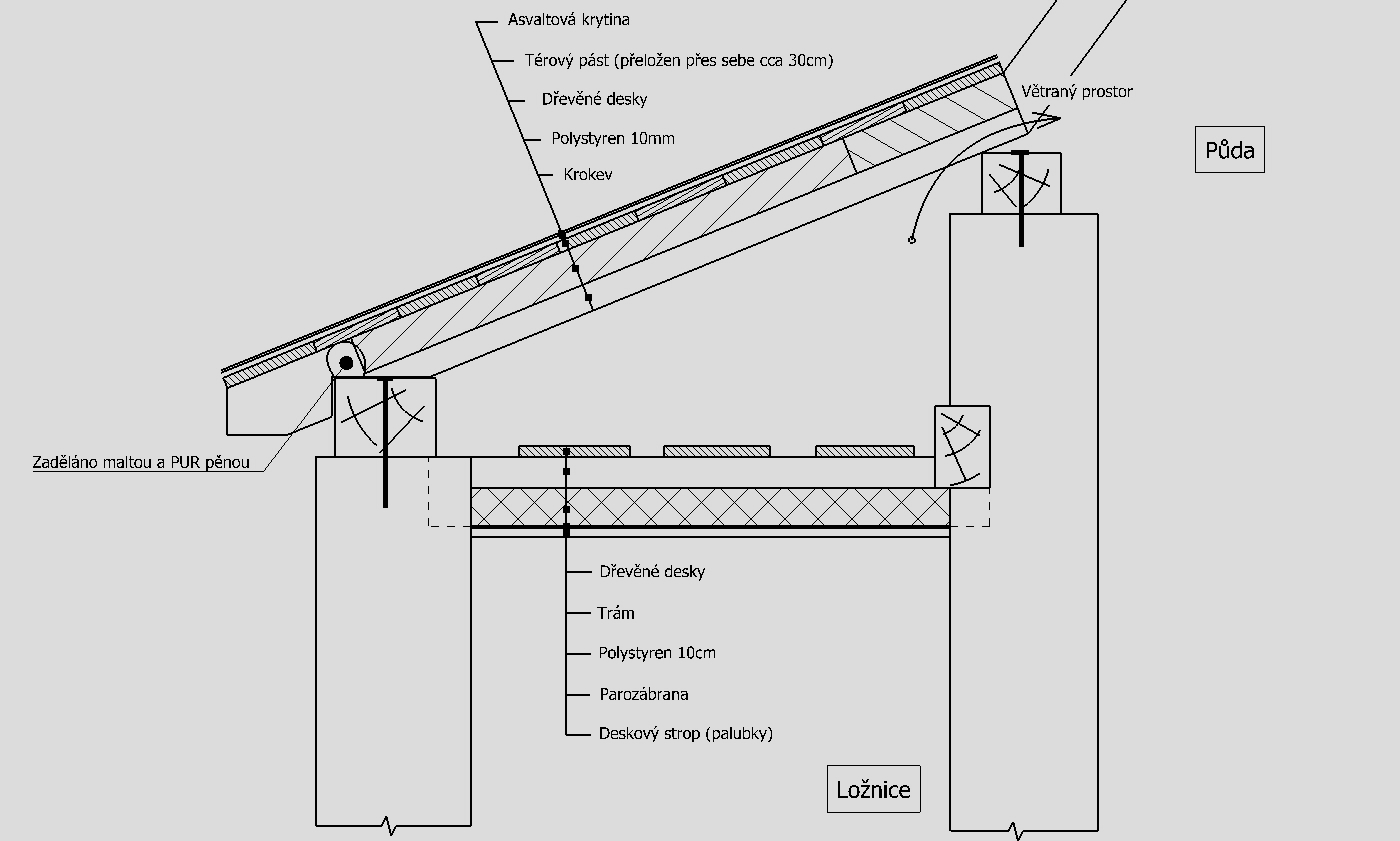
Jedná se o přílepek k báráku který je zde již řadu let. Původně byla na střeše plechová krytina, ketá již nebyla v pořádku a tak se vyměnila za asvaltovou. Skladba střechy je nyní znázorněna na skice.. Voda nebo plíseň se oběvila na spojích mezi polystyrenem a nebo ,,štítovou,, zdí která nebyla zatebla ze vnitř. Dům je celkově nezateplený.
Nevím jistě ale s kolegou stavařem jsme se bavili, že parozabrana je špatně umístěna a měla by být ještě někde dána parotěsná folie. Jinak celý prostor je propojen s půdou v pravé oblasti krovů. Nejsem si však na 100%jist zda je propojena levá pozednice s vnějškem pro cirkulaci vzduchu.
Předem děkuji za názory a doporučení.Počítám i stím, že se bude muset sundat bednění nad krokvemi a dát zde parozábranu.
Nejspíš špatně utěsněná parozábrana v podhledu ložnice a naopak PUR pěnou a maltou utěsněný půdní prostor. Rozdělená tepelná izolace kdy je část ve stropu, část mezi krokvemi. Špatně. Izolace mezi krokvemi jako by nebyla. Celých 20 cm izolace je nutné vložit v jedné vrstvě, tedy do stropu a využít toho že je to otevřené a přidat na 24 cm. Místo palubek dát SDK a parotěsnou zábranu dokonale utěsnit nejen ve spojích, ale i po obvodu na styku se stěnou. Vykopat PUR pěnu i maltu, dát mřížku a půdu nechat volně provětrávat.
Takže celý ten půdní prostor by měl byt volně prodyšny jo? Parozábrany by tedy měla být kde? A parotěska?
Ano, půdní prostor musí být provětrávaný. Parozábrana = parotěska. Na rozhraní teplého a studeného, čili mezi SDK a izolací.
ptám se na to názvosloví schválně, bo jsem na x řezech našel dva druhy folií. Jako např zde na obrázku: parotěsná zábrana a paropropustná folie.
A to ještě můžete narazit na difúzní fólii.. = paropropustnou. U parozábrany a parotěsky lze funkci celkem lehce logicky dovodit.
Podle mne, máte špatně navrženou skladbu.
Horní polyš dejte dolů, a přidejte ještě 5cm.
Prostor nad izolací musí být důkladně odvětráván.
Asi se Vám děje toto:
http://milancukrar.papricka.cz/plisen-nad-izolaci/
http://milancukrar.papricka.cz/kondenzat-na-folii- a-plisen/
a trošku podobně..
Takže navrhujete ,,položit,, izolaci na strop a přidan na 25cm? a co s parozábranou? kam ji dát?
Parozábrama by měla být na teplé straně, ale když tam máte polystyren, tak je to ve vašem případě parobrzda.
nedavno jsi tvrdil, ze polystyren je paropropusny a ze si to muzu vyzkouset nad hrncem z vodou, tak jak to tedy je?
Proto jsem napsal, že je polyš jako parobrzda, parozábrana je n+ěco jiného. Taky jsme napsal, že parozábrana by měla být na teplé straně..
polyš je propustný, ale těžko.
Ve Vašem případě je důležité odvětrání prostoru, jak parozábrana...
Pánové vrátím se k tomu zpět, myslíte že když dáme polystyren nad strom cca 2x12cm a odvětráme ten trojuhelník, že by to mohlo pomoct? Necheme kupovat vatu, jelikož se nám ve dřevníku válí polsterenové desky o tl. cca 12cm.
V jedné místnosti pod střechou to mám podobně, instalovat vatu nebylo technicky možné, nad stropem zatepl. polyst. to kompletně větrá a je to tak řadu let a problém žádný. Takže bych nechal větrat ten trojúhelník,protože odkudkoli se vlhkost dostane tak vyvětrá ven.
Ještě bych se podíval na tu krytinu, měl jsem dříve asfaltové šindele a dělalo to neplechu, protože jsem měl malý sklon střechy,dal jsem falc. plech a není problém.
Podle těch prvních fotek jak vypadá ten šikmý deskový záklop střechy se mi to jeví spíš tak že by mohlo jít i o vodu "shora", zrevidoval bych tu asfaltovou krytinu, pokud by to byla zateklá voda mohla by se jevit jako kondenzační jediná cesta pro takovou vodu je totiž gravitací dolů tam ji zachytí ten polyš a vzniká plíseň, takže když se to pak odkryje vypadá to jako plíseň z kondenzátu protože je to dole nad stropem (stečené). Řešil jsem něco podobného pokrývač mi totiž tvrdil, že se jedná o "kondenzát" nakonec se ukázalo, že střecha pravidelně zatékala když na ní stál sníh,nebo byly silné srážky proto jsem volil falc. plech. Jinak tu kosu trojúhelník bych odvětral v každém případě.
Díky za reakce... ten trouhelnik necháme odvětrany, navrtáme díry a dáme tm mřížky.. jinak ten polyš by měl takto stačit ne? Je potřeba tam dávat ještě paroprospustnou folii? Jak zde p.Cukrar psal, pry neni treba.
Na tu krytinu se muzeme podivat ale udajne je delana s dosti velkym presahem
Mám také takový "trojúhelník" dobré je to odvětrat tak aby byly díry nebo mezírky naproti sobě,"protilehle" nebo ze předu a z boku, zkrátka docílit toho aby tam byl malinko "průvan" pak nemusí být to odvětrání ani velké stačí protilehlé škvíry nebo otvory a proudící vzduch vytahá případnou vlhkost sám, mřížky jsou dobrá věc proti hmyzu. (hlavně dřevokaznému) a pro jistotu bych "preventivně" ty krovy stříknul ochranou proti plísni a hmyzu nikdy nevíte.
Tak mně se s krytinou stalo to, že jsme daly dvě vrstvy ipu a térák, šindel a mysleli si že to přece nemůže zatékat ale zatékalo, při demontáži se ukázalo, že jak mi seschly desky pod krytinou tak mi zevnitř pnutím dřeva tu "ipu" a térák zkrátka roztrhli a šindel na tom malém sklonu vodu mezi sebou propustil. Ta střecha byla tak dobře udělaná, a nová k tomu, že bylo teoreticky naprosto vyloučeno aby zatekla to co jsme pak objevili nás celkem šokovalo. Neříkám že to musíte mít špatné ale když už se v tom "rýpete" prohlídku doporučuju.
Nahoru na ten polyš nedávejte žádnou folii ani paropropustnou, stalo se totiž že se kolikrát zarosila i ta, nechte to dýchat!!
Polyš vám bude dle mne stačit bohatě já tam mám pouhé 4 centimetry protože technicky tam nedám víc, stačí to mám to kryté mezi domy. Akorát já mám ten polyš pod veškerým dřevem a dřevo mám až nad polyšem ale i ten polyš co položíte na to dřevo by měl případnou vlhkost pustit pryč, pokud nebude ničím zakrytý. Četl jsem že polyš je dokonce prodyšnější než dřevo.
Anebo by se to dalo udělat i po staru , tzn. ty spodní vrstvy necháte jak máte včetně 10 cm polystyrenu a nahoru na dřevěné trámky toho stropu už nedáte polystyren ale po celé ploše nahážete navolno slámu, ta bude v tom větraném trojůhelníku krásně dýchat a zároveň dobře tepelně izolovat strop shora to je pro toho kdo se vrací k bio-eko. Dřív se to dělalo tak:
1. nahazovaný omítaný strop na palach
2. spodní desky stropu
3.nosné trámky se vzduchovou větranou mezerou
4.horní desky+ hliněný pomaz
5. naházená sláma jako izolace
6. celý půdní prostor větral
Vživotě nebyly nikdy žádné problémy s kondenzací jako dnes.
Ahoj chlapi, tak se sem musím opět do této diskuze vrátit...
V místnosti kterou jsme ,,zateplili,, jako je v obrázku Strop se zase objevila obrovská vhkost. Mezi trámy se položil polystyren tl. 10cm, na něj přišel další tentýž a na něj ještě další polystyrenová deska o tl. 5cm. V průběhu vánočních svátku jsme se však zděsili když jsme otevřeli ložnici. Ze stropu vyloženě kapala voda. Celkově mohlo z podstropnic vytéct cca půl litru vody. Ten trojuhelník je z půdy navrtán a totéž je ve venkovním zdivu (při přiložení ruky lze cítit slabý průvan). Měl by být tedy tento prostor odvětrán.
Kde je tedy stále chyba? Jen předem říkám že teplota v domě je cca 28°C (topí se fakt fest)
Díky za názory. Budu volat nějakého stavaře ale chtěl by jsem předem znát váš názor..
Při 28°je diferenciální tlak páry ještě větší, než při 20°.
Proč je tepelná izolace na odvětraném kousku střechy? a voda teče odkud? Z rovného stropu, nebo z té střešní konstrukce? Je parotěs přilepený po obvodu, jsou ošetřená všechna místa průchodu šroubů a slepené spoje? A je totéž v té části půdy, kam vede odvětrání?
Izolace je tam, kde jsme se zde ,,domluvili,,. VOda zatím nevím odkud teče bo to nemáme zhozené zatím. Každopádně voda (kapky) jsou mezi spoji stropnic. Jdou vidět že jsou i zvlhle jelikož se začínají kroutit.
To jsou ty palubky na obrázku? Čili voda je až v teplé místnosti?
Na obrázku je polystyren 10 cm a v předchozí diskuzi byla řeč o dorovnání na 24 cm. Pokud se kroutí palubky v místnosti, je blbě udělaný parotěs, protože není ani vodotěsný. Jak je řešeno prošroubování palubek? Jsou dolepené okraje folie u stěn?
Na obrázku strop (co jsem přidal včera) je izolace tl 25mm celkově. Původně bylo méně. Palubky jsou přišroubovány do trámu vruty. Kraje se měly u zdi zalištovat ale zatím jsou zcela odkryté.
Takže jdou vruty skrz parozábranu bez použití pásky Jutadach TPK super a u stěn folie není přilepena Jutafolem TP15? Pak stropní konstrukce není parotěsná a protože polystyren není nasákavý jako vata, všechen kondenzát steče z desek dolů.
Představte si, že na hnec s vroucí vodou dáte igelit a pokličku - poklička zůstane suchá. Propíchněte do igelitu pár dírek špendlíkem a je orosená. A ten přísun vody se sice nezdá tak intenzivní, jako u vařícího hrnce, ale běží 24 hodin denně a ta plocha je velmi chladná. Stačí si nechat na stole zmražené kuře v igelitu a vidíte, kolik vody na něm zkondenzuje.
Těsnost folie se velmi podceňuje, topil jsem mašině na 10° v únoru pod nedokončenou parozábranou, v místnosti nebylo živáčka a po měsíci jsem měl mokrou vatu a až do června to nebylo suché.
Děkuji za odpověď,
takže mi ve skladbě chybí parozábrana. Ta by tedy dle mě měla být na ze strany místnosti přidělána vruty které jsou pak zalepeny páskou? totéž i u obvodu?
Je tento nákres již OK?
Ona tam není vůbec? Vždyť se o ní nahoře pořád píše, že má být na teplé staně. Páska Jutadach TPK super se lepí před šroubováním a tím se sevře kolem vrutu. Jinak by bylo nemožné utěsnit připevnění palubek. Pro připevnění folie je lepší použít oboustranně lepící pásku a počet děr minimalizovat. Váhu izolace mohou držet drátky nebo laťky natažené mezi trámy. Vrchem se dá zalepit Alu páskou třeba místo sponky, když se folie na místě chytá sponkovačkou, touhle páskou se i spojují pásy. U stěny podle podmínek buď páska Jutafol TP15, nebo Jutafol Mastic v tubě.
takže obrázek ano a elektroinstalace, připevnění palubek - vše musí splňovat podmínku parotěsnosti.
Máte pravdu že se to nahoře píše, nicméně se tam také píže, že polystyren funguje jako parozabrana.
Nicméně díky za vaši odpověď.
Kopím tedy parozabranu, natáhnu ji mezi tramy, po bocích nechám ohyb který následně zalepím tou juta páskou a zalištuji. Polystyren na stropu přidržím pomocí drátků a vruty na stropnice podlepím rovněž tou páskou.
Jen mám dotaz. Parozábrana musí být naplá nebo nikoliv? Co si pamatuju tak se mi zdá že by měla mít průhyb. A další dotaz, polystyrenové desky je dřeba spojit páskou (tou stříbrnou) nebo lze nechat jen tak přisunuté k sobě?
Díky za odpověď
tak Wlcáku,Já si myslím. že podle těch fotek ti to může říct akorát kouzelník. Fota by se hodila s lepší kvalitou a potřeba by bylo vědět víc věcí a nebo osobní prohlídku.
. A potom budeš řešit zas ty igelity? Ale na to tu jsou jiní. Jo a ještě si nejsem úplně jistý, že když ti někdo řekne, že krytina má dost velké přesahy, tak je to z vrchní strany OK. Takových kecalů je. Prostě tomu musí někdo rozumět. Jo a nejlépe tomu vždy rozumí, a to sem vypozoroval já sám, ten co to dělal
+Vědět čas, jak dlouho tam poliš byl a Těch věcí na určení je? A já ti taky, aby jsi se netěšil, neřeknu příčinu i když podle datumu, kdy píšeš bych ti poradil: Ted´ dát kyblíky na půdu, protože jak bude odtávat sníh tak tobě se objěví určo kondenzace
Co je toto za ,,debilní,, reakci k příspěvku? Pokud se někdo neumí ani normálně podepsat a píše si nick jak .... tak na to ani nereaguji..
Jinak pro tvou info, kolega keiki mi docela poradil. Sice jsem stavař ale už pár let po škole a dělám jiný obor, a toto mi hodně osvětil.
Každopádně mám na příští týden obědnanou odbornou konzultaci s tesařem tak jsem zvědav co se dozvím od něj.
tak super když ti to kolega keikly vysvětlil: a na to že jsi, stavař tak má odpověd´ je, Že dnes s odpuštěním vystuduje každý vůl.
Nicnéně ti přeju, aby jsi úspěšně vadu odstranil.
Řeknu ti to tak, dělal jsem stavební obnovu, kde se vše bere jen tak okrajově (4r). Jinak jestli si ty osobně stavař a víš VŠE tak klobou dolů. Já teď dělám ve strojírenství což je jiná ves.
Promiň ale jsem prostě alergický, když se někdo zeptá jak zapnout např. výstražné světla a druzí jej odsoudí že neměl dostat řidičák apod.
Jinak díky za tvé reakce, hned vím jak tuto vadu, o které jsem psal, odstraním.
naposled:Já už vím, že nevím vše a už vím, že to do smrti vědět nebudu /a jestli to budu vědět, tak si to nebudu stejně pamatovat/ jsem chtěl jenom pomoct.
Ty Wlcaku já bych nad tím, co jsem psal ještě popřemýšlel.
Jinak se měj pěkně a přeju ti, at´ závadu odstraníš
Možná je to jasné, ale raději zdůrazním - parozábrana nebude jen mezi trámy, bude ode zdi do zdi! Pokud jí přilepíš bez velkého napínání, tak je to v pořádku. Polystyren je jen parobrzda a mezery mezi ním se dají jen obtížně uzavřít, nevím, jestli má smysl se o to pokoušet. Kvůli tepelným mostům můžeš mezery docpat odřezky, nebo zapěnit, ale dokud nebudeš mít jistotu sucha, určitě to nezapěňuj.
Drátky a podlepení prostupů jsou v pořádku.
Každopádně ten prostor budeš muset monitorovat a ošetřit proti plísni. Ne savem, ale fungicidním přípravkem.
Děkuji za opdověď, možná se radějí ptám jako blbec, ale nenapadlo by mě dávat parozabranu jen mezi trámy =D. Samozřejmě ji natáhneme v velkovém pásu, podlepíme předtím tou juta páskou kvůli vrutům. Na přechodu zdi použijeme taky juta pásku (ale tu jinou) a pak to zalištujeme.
Díky za odpovědi.
Wlcaku, trošku se již ztrácím parozábranu tedy dáte zespodu?
Na teplou stranu?
Izolaci chci dát na spodní část trámů a na ni potom buď laťky a následně sádroš (což teď nechci bo kdyby to náhodou začlo znova tak ten sádroš bude KO) a nebo na ty trámy a parozabranu přišroubuju ty stropnice (plastové)
Jinak se omlovám za neifo (dnes jsem i zapoměl zavolat klempířovi) ale narodil se mi syn tak jsem na strop kašlal =D
Blahopřeji k potomkovi!!!
Děkuji, je parozávrana dána v pořádku?
Na spodní stranu připevnit kvalitně kvalitní parozábranu, rošt na SDK, SDK.
Tak jen pro info.
Dnes se byl podívat tesař na krov a ,,zatékající,, strop. Po jeho shlédnutí je jasné, že voda v krovech je způsobena kondenzací vody nikoliv zatékáním (desky co jsou na krokvíh jsou mokré po celém povrchu stejnoměrně což u zatékání neni pravděpodobné, aby se voda dostala vzlínáním na celou plochu desek v pokoji o velikosti cca 2x5m)
To že jsou díry provrtány a ten trouhelník luftuje je zcela v pořádku nicméně nedokázal pochopit odkud se ta vlhkost bere. V danném pokoji po vlhkosti není ani stopy. Dle něj parozábrana může pomoci nicméně problém nevyřeší.
Prozatím jsme se domluvili, že vyvrtáme více děr pro proudění vzduchu nad polystyrenem a strop uzavřeme jak byl posledně. Po cca 1-2 týdnu se podíváme zda desky na krokvích osychají nebo jsou stále mokré. (dle něj když toto dělá na starších domech, tak je střecha po týdnu znatelněji suchší, takže by jsme rozdíl měli poznat).
Pokud ale toto nepomůže, bude potřeba krov nechat totálně vyschnout a na jaře udělat ,,dvojtou,, střechu s větranou vzduchovou mezerou + nejlépe dát plechvou krytinu než stávající asvaltovou.
Ještě dolním, že když tchán oddělával desky polystyrenu, tekla z poza nich voda tak jak jsme říkali.
:facepalm: Prouděním chladného vzduchu v současnosti jen zvýšíte kondenzační schopnost vašeho odvlhčovacího článku. Zkuste test s parozábranou než budete předělávat střechu.
Tohle není ten správný člověk na tenhle problém.
Nedokázal pochopit, odkud se ta vlhkost bere
Tohle není ten správný člověk na tenhle problém.
Souhlasím s Kejkilem.
Nad tepelnou izolací musí být odvětrání. Jinak s tam sráží vlhkost.
Nevím jestli jste to četli ale nad izolací prostor odvětrán je.. v délca místnosti je cca 5děr do bedna pod střechou a z půde je cca co 30cm díra..
Tak vy si tedy myslíte že je to čístě kondenzační voda která projde z vytápěné místnosti přes 25cm polystyrenu a srazí se v odvětrané části na deskách přibitých na krokvích? Pokud tam nyní dám parozabranu a nebude fungovat odvětrání tak tu střechu přece pohřbím pokud se tedy nepletu.
Jelikož se debata tříští, občas so pletu problém s jinou poradnou, tak jsem asi přehlédl, že je prostor odvětráván. Pak ale nemůže v tom prostoru docházet ke kondenzaci.
Buď tam zatéká, nebo je tam kondenzace, nebo tam někdo leje vodu,
Prostor je odvětrán jak jsem psal, strop je zateplen jak jsem kreslil jen neni zadelán parozabranou.
Nyní budeme dělat další díry pro odvětrání a strop uzavřeme jako že je OK. Po cca 1-2týdnu se znovu odkryje a zjistí, zda se voda strácí nebo nikoliv. Bohužel ted nám již parozábrana nepomůže, nyní musime ten krov důkladně vysušit.
Milane při tom množství vody, které už tam je, a teplotách, které venku panují, se klidně voda na podbití může srážet. Bez parozábrany je to všechno marný, marný.
Jasný, parozábrana je prvořadá..
Ale odvětrání musí být učinné, a velké otvory. Přiznám se, že již nehledám detaily této stavby..