
Kotel Viadrus U22 Economy
Zdravím Vás a chtěl bych poprosit o radu.
Nenajde se tu nějaký topenař?
Mam starý U22 - 2 emisní třidy - 5 člankový a chtěl bych vyměnit za ten U22 Economy, dokud ještě jsou.
Mám přizemní baraček 11x11 metu 4 mistnosti a i ten 5 člankový bych řek, že je už dost předymenzovaný.
Jaký koupit?
16 kW je 5 člankový.
Kolik KW má ten starý U22?
Děkují.
http://www.bazars.cz/kotel-viadrus-u22-expanzni-nadoba.html
Tu jsem našel infi že U22 tříčlánkový má výkon je 17,7kw
https://ivatoshop.sk/kotol-viadrus-hercules-u-22-d--5-cl-d3398
záleží akým palivom harcuješ v kotli.
Bežné spynovacie kotle na tuhé palivo určené pre r.d. sú od 13kW po 40kW.
Nemaj obavy o spotrebu aj pri 40kW kotli, však sa dajú výkony úspešne korigovať, regulovať, aby si zbytočne neprekuroval, neharcoval do kotla, nevyhadzoval chcechtáky do komína. Od riadenej regulácie prístupu vzduchu do horáku, okysličovanie paliva, teploty média smerom do obehovej sústavy až po reguláciu izbovým termostatom podľa požadovanej teploty a pohody konkrétneho užívateľa (cca 23.5°C je ideálny priemer teploty v obývacích miestnostiach, kúpelni, WC a 19°C v spálni). Elektronické odvody teplotných čidiel sú vzájomne do série prepojené čím si kotol riadi spotrebu.
Správne zapojenie elektronických čidiel, termostatov, obehového čerpadla sa celkom spotrebou paliva vyrovná kotlom s rôznymi parametrami výkonu. Zákony termodynamiky v konkrétnom objekte nepustia či si kúpiš 17kW alebo 38kW kotol recipročných technických vybavení, vymožeností, od rovnakého výrobcu.
Takyto mám a vím jen že je 5 člankový.
https://www.ireceptar.cz/domov-a-bydleni/domaci-uprava-kotle-plech-a-trubka-zlepsily-spalovani-bocni-rost-regulaci.html
Tedy nevím do čeho jit.
https://www.topenilevne.cz/hledat/?q=U22%20Economy
Viadrus U22 Economy 6 čl. 25 kW
Viadrus U22 Economy 7 čl. 30 kW
Píšou 29kW.
https://kotle.heureka.cz/viadrus-u22-c-5-cl-29-kw/specifikace/
Shaním nějakeho moooc ochotneho, kdo umí měřit
a ma jeden s těchto kotlu.
Viadrus U22 Economy 6 čl. 25 kW
Viadrus U22 Economy 7 čl. 30 kW
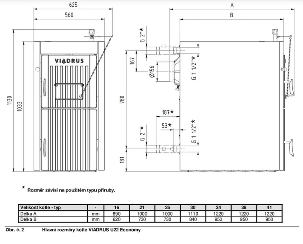
V přiloze jsou rozměry.
Po schoech do sklepa kotel co važi 410 kg nedostanu.
Před barakem ho v pohodě spustím do nasypníku na uhli.
Ale v nasypniku je otvor do sklepa 93 x 70 cm
Na šiřku má kotel 560 cm a stejnak než ho položim do odstrojím, tak ok.
Ale delka mi nějak nesedí.
Určitě se daji sumdat dviřka.
U toho mého stareho viadrusu šla oddělat ta přituba pro komin i ty pro vstup a vystup vody.
I v manualu jde vidět že to jde i u tohoto.
https://d25-a.sdn.cz/d_25/c_data_H_J/ad0HZ?d=attachment&f=viadrus-u22-economy-25-kw-uzivatelsky-manual.pdf