
Ytong 300mm+200mm EPS ?Co myslíte ?
Dobrý den,
na příŠtí rok máme v plánu stavět menší přízemní,rodinný domek o rozloze 88m2,Po dlouhém studování různých diskuzí,článků atd. jsem dospěl k názoru,Ze nejlepší bude obvodové zdi postavit z ytongu 300(líbí se mi jak se s ním pracuje,material jako takový...a jelikož jsem elektrikář,vím co to je sekat do cihle ) ) Chtěl bych to zateplit polystyrenem 200mm. A tady bych Vás chtěl poprosit o odbornou radu,popřípadĚ jestli s tím má někdo zkušenosti... je to vhodné řešení ? Někdo říká,že je to blbost,jiný to zase chválí... myslím tím rosný bod,kondenzace páry,tepelná náročnost... A jestli je vhodné to vytápět olejovými radiatory na elektriku. (plyn nechci,moc tomu nevĚřím,krb taky ne... je z toho bordel...asi deformace z práce,tahne mě to k elektrice )Kolik by mohla být teoretická spotřeba,když budu mít okna s trojtými skly,a strop zateplen 50cm vatou ? Díky za odpovědi,tipy
klidně 25-25cm..nebo levnější Porfix.
Pokud dáte 50cm vaty, tak dejte 30cm izolace na stěny..
vytápění na elektriku, když se bojíte plynu, ale je to dražší?
Proč se bojíte plynu? Tepelná náročnost se projevím, při nedostatku kvalitní práce a izolací. Jak budete mít izolavané základy apodlahy? Jak odizolujete první řádek, vazbu od zdiva, budet mít věnec?
No nevím doma máme plyn,ale víc věřím elektrice.Navíc jsem se bavil s kámošem,který má taky elektriku,říkal ,že ročně zaplatí za elektriku 40-45tis(je to celková spotřeba-ohřev vody,keramicka deska....),má starý barák,a rozlohově skoro 2x větší jak já... Jak jsem napsal níže ,projekt zatím nemám,nejdříve se chci nechat informovat od Vás zkušenějších.
50cm vaty je zbytečných ? při izolaci stěn 200 eps ?Co by jste doporučoval vy ? Na izolaci do podlahy ,na zaklady. Budu mít určitě věnec,protoŽe vidïm co dělá náš starej barák,jak se rozjíž´di.... Děkji za vaše rady . A pokud se mohu ještě zeptat,jak usadit okna ? Můˇ/zou být zaroveň s vnější stranou stěny ? Není v tom nějaký problém ?
trdej, je dokázáno, že nejdražší spotřeba na vytápění u klasického domu je elektrika, ať akumulační, či přímotopná..
jen 0,5% dotazů, které budete a musíte mít..
50 cm vaty do stropu je s výhledem na 20-30 let OK, ale pokud dáte cihly bez zateplení, je to zbytečně hodně.. pokud dáte 25 cm izolace na 25 cm silnou zeď, je to OK.
Co by jste doporučoval vy.. osobně bych dopručoval půl roku studovat všechny možnosti, které trh nabízí, a stavět s matroši na dalších 30 let. Přesný postup nelze sdělit, páč neznám nic o vašem stylu, možnostech a nárocích. Někdo postaví levně a drahý provoz, jiný volí jiné řešení.
Na izolaci podlah EPS, na izolaci základů XPS, na izolaci zdiva s dotykem ostatních matrošů, novomur, Ytong a podobně..
Detaily dělají pohodu, nikoliv kvalitní cihla uprostřed zdi..
Váš starý barák se rozjíždí kde? že tam není věnec? To může být něčím jiným..dříve se věnce nedávali..a baráky stojí, dnesk barák s věncem prasken. Pravda je někde mezi..
Okna bych umístil před zeď, nebo na hranu zdiva. Obojí je možné, je třeba vždy volit optimum při síle izolace. Jen se zeptejte, kolik stojí kubík: Izolace EPS, cihelného střepu Heluz, Ytongu, Porfixu,a počítejte co se vyplatí..
problémy jsou vždy při nekvalitní práci.
Děkuji za odpověď. Nebojte nebudu stavět hned zítra,zatím se právě jen poptávám...V rodině máme zedníky ,tak mi pomůžou/postaví,jen jde o to zvolit správný materiál.
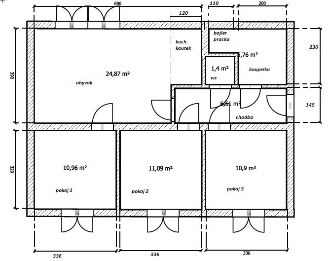
Co se týče stylu,nejsem zastáncem různých ´výklenku,podsazených střech atd... které zbytečně prodražují stavbu a jsou více méňě jen na oko... a navíc jsem omezen financemi . TakŽe půdorys je obdelník o rozmĚrech 11x8m .Díky za odpověď,vážím si jí.
Jooo jinak náš starý barák nemá bohužel věnec,objevili se (postupem času) praskliny od vrchu stěny až skoro do středu zdi,bude se to muset svázat roxorama. Je to určitě absencí toho věnce. Díky za váš čas.
A co říká projekt?? A co štítek tepelných strát?? Chystáte se stavět příští rok....hmmmm. Tak ještě nevíte co Vás čeká
. My jsme zrovna dostali stavební povolení (protože to je přes 150m2). A jak to dopadlo? V projektu byla cihla 40 + 100 EPS. Po domluvě s projektantem se to změnilo.
Udělal jsem si v exelu tabulku - cena různých materiálů a kombinací materiáli (ytong, cihla, EPS)versus koeficient lambda (kvalita zateplení). Vyšlo nám nejlépe xxx broušená 49 nebo 50 bez zateplení - lambda teoreticky pod 0,20. Zateplení na plochu 210 m2 je dalších cca 140000Kč a zlepší lambdu cca o 0,05. Spočítat návratnost této investice dokážu a se pohybuje (v dnešních cenách energií) asi 70 let. Než do zateplení fasády tyto peníze nacpem do lepších oken (pod 0,8) zateplení základů, zateplení spodních řad stěny (to bude 50 2v1)a samozřejmě střechy. A nebo do vlastního lesa, nebo lepšího topení a nebo........
Pepane, nechci zpochybńovat Vaše výpočty, ale zeptám se Vás, dělal jste kalkulaci na slabé zdivo a silný izolanet. Moje výpočty jsou vždy pro tuto metodu.
(výpočty jsou pravdivé, pokud si je sám zfalšuji
)
Děkuji za reakci,opravdu nevím co mě čeká,jsem v tomhle laik. Ale mě by měla stačit ohláška,což by mělo být ,,snažší,, . Ano 40 cihla,nebo lambda 375 je fajn,má dobrý vlastnosti,tak aby akorád stačila na normu.Ale co s překladama?ktere nebudou zatepleny a nemaj takové vlastnosti ? A je taky pravda,že taková cihla se nevyplatí už zateplovat,protože sama osobě má velký R,a R EPS by měl být minimálně stejný,nejlépe větší (čerpal jsem z diskuzí) A právě proto se ptám zde,abych než podám požadavek na plán,abych věděl fakta,rady tipy,rizika .Skladba 300mm ytong +200mm EPS vyjde zhruba plus minus na stejne penize jako Ytong lambda,dokonce ma i lepší vlastnosti jak ta lambda...jen se ptam,jestli je to dobre řeŠení,jestli v tom neni zakopanÿ pes. Děkuji za váš názor,vážím si každého názoru.
Tvrdej, nevím co chcete stavět, ale je dokázáno, že stěna na bungalov může být již od 17cm + izolace. Pokud chcete Ytong, dejte 20-25cm. Vhodné je v akci koupit Lambdu, a stavět na 25cm...(otočit tvárnici)
Určitě se nevyplatí stavět na, cituji: ....tak aby akorád stačila na normu
Jsem rozhodnutý pro ytong 300 +200eps,určitě nechci stavět jen tak tak aby to stačilo na normu... Známy má postavený z ytongu 300+100eps a nemůže si to vynachválit...ale když už budu zateplovat,tak dám aspoň už 200eps ,rozdíl není zas až tak velký oproti 100eps .Děkuji za Váš čas.
Jinak zde je můj návrh pro představu.(dělal jsem ho v jednom programu sweet home,potom dokreslovaný v malování,tak to není jak od profíka)
Snazší to není. Rozsah podkladů i dokumentace je totožný. Výhodou ohlášení je kratší lhůta na vyřízení(max. 30 dnů), podstatně menší správní poplatky, možnost stavění svépomocí. Nevýhodou je nutnost opatření souhlasů sousedů.
Ohledně vytápění bych se určitě nezbavoval možnosti v budoucnu vytápět rodinný dům krbem či plynem. Nikdy nevíte co bude. Jinými slovy považuji stavět rodinný dům bez komínu za krátkozraké.
Ano vím,proto to je v uvozovkách
Co se týče topení,popřemýšlím o tom,díky za váš čas.
Těch uvozovek jsem si nevšiml, promiňte.
Jééé,ne třeba se omlouvat,o nic nejde
Vašich rad si docela vážím a nechci nic zpochybňovat, možná se pletu.
TAkže moje výpočty kde je cena materiálu zdi + případná práce s lepením EPS (práce navíc cca 600Kč/m2). Vztahuje se to na našich 207 m2 obvodové zdi.
Heluz STI 49B - 159600 Kč - lambda 0,2
Heluz STI 44B+ 100EPS - 246000 Kč - lambda 0,14
Porotherm 30 + 100 EPS - 399000 Kč - lambda 0,24
Ytong Lambda+ 450 - 350000 Kč - lambda 0,2
a ještě např.
Heluz Family 50 2in1 + EPS100 - 571000 Kč - lambda 0,1
Je potřeba vzít v úvahu, že Porotherm a Ytong Lambda jsou poněkud dražší stavební hmoty kde, dle mého názoru, rozdíl v ceně neodpovídá výhodě. Porobeton s enechá sehnat levnější (H+H, Ostrava...)
Takže jsme skončily u Heluzu nebo Thermopor Gima. Vyjde to cenově skoro nastejno, jen pokud je Heluz v akci jako teď (-46%). Ale je rozdíl v dopravě. Heluz gratis, Thermopor se platí doprava z raichu (pro nás 4 kamiony - cca 50000,-)
Prosím opravte mě jestli to mám špatně, ale rozdíl v lambda 0,1 na 200m2 v našich podmínkách dělá asi 600 W výkonu topení, je to přece W/m2K ???.
O sezateplením mám jinou zkušenost. U tchyně zateplili panelák. Sice topí skoro zadarmo, opravdu minimálně pouští topení a je tam pořád 22 - 24C. Jen vlhkost se tam přes noc zvýší o 20% a já tam cítím takový to hnusný studený vlhko, něco jako když budete jen větrat klimatizací. Z tohoto důvodu jsme zateplení odmítli. Otázka je jestli by se vyplatilo zateplit pouze severní stěnu.
Takže fasádu potřebujete u obojího a za pouhé nalepení a broušení EPS to vychází 600,- za m2? To je teda randál. I když je to včetně DPH.
mne se to moc nezdá, EPS 200mmm je za 200Kč/m2, nalepení firmou až po natažení perlinky cca 250Kč/m2
Tak ta zeď se také natahuje, tohle je jen eps, a práce k němu navíc. A ta DPH.
600kč za m2 ? To je i se zedníkem ? NEbo jako jenom lepení EPS ?Vždyť ytong 300mm+200 EPS vyjde na 815kč/m2 No my máme v rodině 3 zedníky,takže práce nebude tak drahá....
EPS 200mm cca 200Kč/m2, lepidlo cca 15-20Kč/m2, pěna vychází o něco levněji, kolem 12-15Kč/m2, navíc to jde pěnou o dost lépe
, nic se nemíchá atd.
Těch 600Kč je tak cena 20-25cm polyše a udělání firmou, tj. komplet lepení až po fasádu včetně materiálů. Nebo neumí hledat, dát nabídku či je z nějakého drahého kraje, ale poslední varianta je blbost.
A nebo tak...
Ale ja to pochopil,aspoň jak to psal,že těch 600kč je jen za lepení.
No nevím odkud kdo jste, ale cenu 600 Kč za m2 jsem odhadl. Nabídky se pohybují až do 1000 za m2 s fasádou. Odečetl jsem 400,- na cenu fasády.
A nebo pak počítám:
EPS 100 stojí 110,- nebo taky 170,-
pytel lepidla stojí asi 200,- a stačí na přilepení pár metrů tak 50,- na m2
talířky jsou asi zadarmo - 80,- na m2
perlinka ať se to dobře počítá 60,- na metr
vrchní natažení - určitě nejen jednou - bude stačit pytel na 2 m2 snad jo - tak to je další 100,-
Pokud máte práci zadarmo tak jste na 400,- za m2. A práce zadarmo?? To nikdy nebude!!
DAlší věc je, že nechci žít v uzavřeném prostoru!! Zkušenost mi stačí. I kdyby zateplení stálo pouze 100 000,- a zlepšil jsem lambdu z 0,2 na 0,1 tak roční úspora (v dnešních cenách) bude pouze několik tisíc. Při návratnosti ceny zateplení 40 let a životnosti 30 let.....Oknem uteče podstatně víc tepla a střechou taky. Tak je snad lepší vrazit peníze do toho než do EPS.
EPS 200mm cca 200kč/m2
pytel lepidla (25kg) stojí asi 200,- a stačí na přilepení pár metrů (2-4kg/m2, tedy cca 8m2) tak 25,- na m2, pěna vychází stále pod 20,-/m2
talířky jsou asi zadarmo (talířová hmoždinka-komplet 1,5-3,5Kč/ks, spotřeba 6ks/m2) - 10,- na m2
perlinka 15,- na metr
vrchní natažení - určitě dvakrát - bude stačit pytel na 4-5 m2 - tak to je další 100,-
Navíc je tenhle výpočet blbost
, nebo si myslíš, že na porobeton rovnou natáhneš finální fasádu? Ale rozdíl v zateplit/nezateplit 200mm polystyrenem svépomocí je tak 300Kč/m2.
vidíte, jak lze hýbat s čísly?
uplně čumím, že by někdo koupil perlinku za 60Kč...
spotřeba lepidla na nalepení 3kg, na zatažení 3kg.. lepidlo 301 DUO, http://obchod.iso-izolace.cz/index.php?a=zbozi_det ail&product_id=1482&cat_id=155&id_menu=155&id_menu 1=&sub_id=333&prod_id=
a klidně ještě levněji..
ale jak jsem sdělil dříve, udělám rozpočet pro (ne)výhodnost tohoto materiálu.
Citace: Vždyť ytong 300mm+200 EPS vyjde na 815kč/m2 No my máme v rodině 3 zedníky,takže práce nebude tak drahá....
?????????????????
No tak nevím jestli to zvládnete, ale zkuste počítat.
1 kus Ytong P2-400 tl. 300 stojí 145 Kč, je jich 6,7 na m2 + cca 180 kč za EPS 200. Mě to vychází na 1151,5 Kč na m2 bez lepidla, perlinky, talířků a práce. Můj odhad je 1400 za m2 bez práce. Možná se pár korun ušetří když místo Ytongu se požije jiný porobeton.
Jiným (třeba H+H) se ušetří sakra hodně. A nemůžete koukat na cenu jedné cihly, jakmile se bere na barák, jsou ceny jinde - už teď vidím na Heuréka cenu od 80,-.
A co treba tady ??http://www.stavebniny-jemelka.cz/tvarnice/ytong/30 /p4-500pdk je za 82kč,ale má horši parametry jak vámi zmiňovaná... Takže tady:
http://www.stavebniny-jemelka.cz/tvarnice/ytong/30 /p2-400pdk cihla stoji o 47kč míň.... než těch vašich 145kč.(+doprava 24-27palet zdarma-jen pro zajímavost) To je tak max. cena ,za kterou se dá koupit... No a jestli takhle hledáte i firmy,které vám to mají udělat.... Tak to potom jo... Jinak,kdyby jste si sehnal nejakýho sikovnyho zednika,ktery by vam to udelal ,,bokem,, tak si vezme tak 250kč/hod .
250Kč na hodinu? to snad ne......
No...mělo tam být: max 250
Moc tomu nevěřím. Minulý rok jsem dokončil hrubou stavbu a ještě loni byl nejlepší poměr "cena/ výkon" u sendvičů z tenkého zdiva + izolace.
Kastrůlku, teoreticky lze spočítat cokoliv. Určitě je to bez započtení tepelných mostů.
Otevřu první katalog. Porfix 30cm, +10cm izolace a U=0,18 hned vedle Porfix 250+24cm izolace U=0,12
Každý ať si vybere dle své víry...
Jaká je cena porfixu za m2 + EPS?? Teď jsem si to spočítal a u mě to dělá 236000Kč. Není to zas takový rozdíl proti cihle bez zateplení. Ale máte pravdu, že každý si musí vybrat podle toho čemu věří
.
ytong 300mm+200eps vyjde 815kč/m2,tedy na váš barák (207m2) 168705kč+prace+lepidlo.
Chlapi, spočítat lze různě.
Cenu smatroše si seženete dle svých možností.
Přilepení polyše musí být do 100Kč, zatažení do lepidla rovněž do 100Kč, a natažení fasády do 80Kč...vše za metr na dlaň.
Je na každém, co si spočíta a čemu uvěří..
Tak na to koukněte. EPS jsem tam dal 300 za m2 - přesvědčili jste mě, že 600 je moc. Ceny jsou nyní skoro všechny ověřeny, mám jeden eshop kde jsou slušnější než jinde.
třeba blbě koukám, neviděl jsem tam porfix 25+25 izolace, ale všiml jsem si polyč 10 cm nemá R= 2,7, lae 2,56 při EPS 70F
Každý věříme čemu chceme..
Můžu mít dotaz? Jaký R má eps 200 ?Když 10cm má 2,56,tak 20cm bude mít dvakrát tolik ? Vyplatí se investovat do trojskla na oknech ? Co si o tom myslíte ? Děkuji za odpověď.
trdej, ano 20cm je 2,56x2= 5,128
Trojskla, dnes již jedině trojskla. Bez kompromisu.
Takže y300+eps200 = 8,28 ,je to dostačující ?A můžu mít ještě jednu otázku ?(omlouvám se,jsem otravnej) Jaky R má dvojsklo a jaký trojsklo ? Co jsem se ptal známýho,tak rozdíl mezi dvojsklem a trojsklem nebyl až tak velký. Děkuji za vaše rady
Už jsem to našel,trojsklo ma poloviční prostup tepla oproti dvojsklu.Zhrba,záleží i na výrobci.Díky
trdej,
1) nejste otravnej
2) 8.25 je dostatečné, jak jste na toto číslo přišel?
3) co je velké a malé?
pomůže toto: http://www.akuterm.cz/download/Akuterm_typy_skel_2 012.pdf
jsou různá dvojskla a trojskla..
u dvojsek je složení vetšinou 4/16/4, kdežto u třech skel je rozdíl v rámečku...10,12,14,16,18mm
No ten ytong300 p2 (aspoň to tu píšou http://www.stavebniny-jemelka.cz/tvarnice/ytong/30 /p2-400pdk ) ,tak jsem to sečetl s tim EPS ,je to správně ? Děkuji za trpĚlivost,a tabulku,budu studovat
Kdybych měl ještě nějaké otázky,můžu Vám napsat na email ?
Klidně se ptejte, máte možnosti:
osobně v práci, telefoenm, ICQ, skype, email..vyberte si co Vám vyhovuje..
317_subor.pdf
strana č.10, kde je uvedeno 5% vlhkosti (laboratoř) R=2,97 + 5,14= 8,11 ale toto je nereálné...