
 Zahradní domek na dřevěném roštu - pozice domku
				Zahradní domek na dřevěném roštu - pozice domku			
							
					Dobrý den, pustil jsem se do stavby malého zahradního domku:
https://www.baumax.cz/vrobek/zahradni-kulna-398x298,14101.html
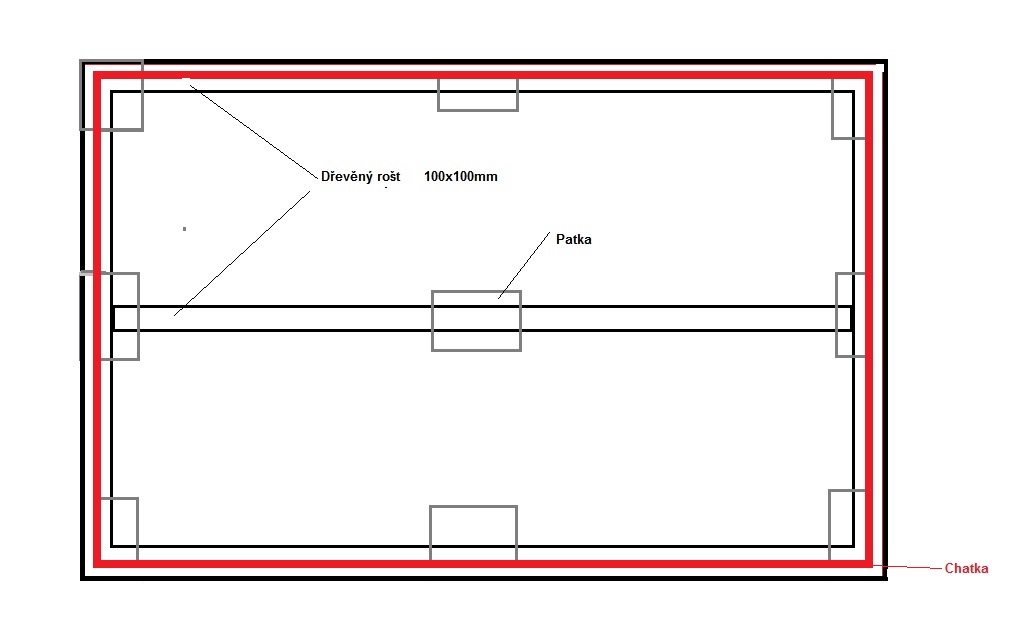
Udělal jsem si betonové patky, na které přijde dřevěný rošt 100x100 mm.
Na tento rošt plánuji umístit výše uvedený domek.
Moje dilema je, do jaké pozice mám umístit tento domek?
Do středu roštu? obr.1 Nebo na kraj roštu? obr.2
Děkuji za rady a podněty.
 
 
Šířka stěny je podle popisu 34mm. Osobně bych šel variantou A, možná bych to nedělal úplně do středu, ale nechal tam zvenku malý přesah roštu, abys měl nějakou "vůli" pro umístění domku.
Mám pravě trochu strach ,aby se tam nedostávala voda. Ale je pravda tak nebudu mít rezervu. Popřípadě nějaký tmel
Možná bych pod domek dal nějaké staré lino. Nevím jak to máš vysoko od země a jak se ti tam drží vlhkost.
Tady mi jde spíše o toto: viz obrázek
Dobrý den,udělejte variantu B,bude tam zatýkat,držet se sníh a později pozvolna odtávat a namáčet hranolek.Tím,že tam bude určitá vlhkost tam poroste mech a lišejník.Když by ste přistoupil k variantě A,tak hranolky šikmo zhoblovat,aby voda hned odtekla.
Mám podobný rantl na domě,sníh a déšť dělají své včetně toho mechu,zelená fasáda několik centimetrů,řešit už to nemíním je to takto od roku 1939,ale fasády od té doby dvakráte nové a takto to vždy dopadlo.Vhko a mráz dělají své.
Když né jinak,tak alespoň malý spád od budovy ven.
Děkuji za radu. ??
obrázek číslo 2 je lepší varianta