

 rekonstrukce bytu 3+1
				rekonstrukce bytu 3+1			
							
					Zdravím kutily,
během tohoto měsíce se snad dočkám a stanu se majitelem svého většího bytu. Mám pár otázek, je to totiž holobyt, takže kompletní rekonstrukce je nutná (podlaha, elektrika, okna, topení). Nikdy jsem rekonstrukci neřešil, tak mám na Vás pár otázek. Dispozičně bych to chtěl řešit, viz příloha - možná nějaký návrh, jak pořešit šatnu, která vlastně bude mít přístup z koupelny. Ale co si nevím vůbec rady, jak se nakupuje elektronika? Koupit vše postupně a vyhledávat přes herueku slevy, nebo zajít do nějakého hyper super turbo marketu a ať mi udělají kompletně elektroniku? Je toho za cca 120tis, tak jestli na tom půjdou dostat nějaké slevy, popřípadě montáž a doprava zdarma?! To samé nábytek, taktéž řešit samostatně v ikea, nebo zajít někam na komplet nabídku? Kuchyň mi udělá kamarád stolař, ale jde o pokoje, obývák,....
Za jakékoliv rady budu velmi vděčný, ať neudělám nějakou botu :)
 
 
Řešit rekonstrukci bytu tím že nejdřív nakoupíš elektroniku? Jde to také, ale....
Ta rekonstrukce bude trvat nějakou dobu, kam tu elektroniku zatím uskladníš, mezitím poběží záruční lhůta a do prodeje se dostanou novější typy.
Ale můžeš si už teď rozmyslet, kam a co elektrického chceš dát a podle toho si naplánuj, kde chceš mít zásuvky a vypínače. A ať už si naplánuješ zásuvek kolik chceš, až se zabydlíš, stejně zjistíš, že je jich málo
Nene, to jsi mě špatně pochopil, budu ji samozřejmě kupovat až bude vše hotové, včetně nábytku. Spíš jsem se ptal, při takovém objemu, jestli jde někde nějak ušetřit, když se to třeba koupí najednou, nebo to opravdu pak nakoupit postupně přes heruéku. Moje představa, jak se bude postupovat:
Koupit byt :)
Vyklidit + demoliční práce
Stavební úpravy + rozmístění zásuvek + vodo
Výměna topení, vč trubek za měď
Podlahy
Okna
Malování
Jak budou podlahy, tak pomalu řešit nábytek a po instalaci nábytku řešit elektroniku, která může být před objednána a být skladem u dodavatele. Stolař potřebuje desku a troubu dřív, než já potřebuju TV, to je mi jasné ... právě nevím jak na to .
.
Ale už u stavebních úpravách bych měl zhruba vědět, co chci koupit, kvůli rozměrům. Což tak nějak vím - digestoř, indukční deska 4plotýnky, trouba, vetší lednice, pračka+sušička, 2tv, stereo repro + zesák + BD přehrávač, mikrovlnku již mám.
Ale asi nadtím nějak moc přemýšlím a dělá se to nějak za pochodu :)
Vazne chces, aby ti lednici, televizi a hifi sestavu dodala ta sama firma?
To samy reseni nabytku IKEOU - poptej treba toho chlapka co ti dela kuchyn, jestli by nahodou neumel i skrin ci postel, treba dospejes k lepsimu pomeru cena/vykon.
Spis co se elektroniky tyce - nezapomen si nechat natahat husi krky pro AV+PC kabelaz.
Jestli je to byt, pod družstvem nebo SVJ, panelák nebo cihlovej, rovnou vyškrtni topení. Z prohlášení vlastníků je nejprve nutné zjistit zda jsou radiátory součástí bytu či ne. Pokud součástí bytu jsou, je částečně vyhráno a lze je vyměnit za tělesa ekvivalentních parametrů. Rozvody budou zcela jistě součástí domu, takže do nich nelze sáhnout.
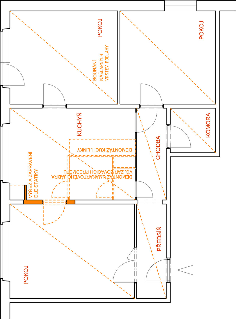
Ten novej stav se mi zdá trochu pomatenej. Bylo by možné dodat dispozici s popiskama? Stačí na kus papíru a oskenovat nebo vyfotit. Ta černá šikmá čára co jde do kouta mezi komoru a pokoj jestli to má být příčka tak to je pěkná pitomost. Představ si jak se ti zúží průchod do pokoje a jak tam budeš stěhovat nábytek. Přišoupni si k nějakým dveřím skříňku, kus desky a zkus si to.
Tomu návrhu nerozumím. Připadá mi to jako nějaká zhovadilost. Kde tam máte koupelnu a samostatné wc? A proč je to jádro vystrčené takhle do prostoru?
Jo už to začínám chápat, to zelené je kuchyňská linka do U a okolo jádra, v místě bývalé chodby je obtočena koupelna s wc a s přístupem do komory ... upřímně, je to kravina, nechte si to někde navrhnout. A až budete vědět co vlastně chcete stavět, tak se zajímejte o slevy na elektroniku.
Do tohle malého krcálku bytu je slovo šatna jako samostatná místnost nemožná, jelikož to nepůjdeš udělat na úkor snížení prostoru pokoje, tak si tam maximálně uděláš šatní skříň (na míru - my jsme si v chodně udělali výklenek a šatří skříň je výplň toho, 60 cm hloubka pro představu). chodby mají být minimálně metr široké či trochu víc, aby se tam člověk necítil stísněně a šlo tam stěhovat věci případně, aby se dva lidi míjeli a současně se o sebe nepomilovali společný hajzl a koupelnu nebudu komentovat, do toho jsme nešli, hlavně je třeba mít rychlé kvalitní odvětrávání!!!!
 společný hajzl a koupelnu nebudu komentovat, do toho jsme nešli, hlavně je třeba mít rychlé kvalitní odvětrávání!!!!  celková cena rekonstrukce v základu bez spotřebičů min. 300tis.Kč obvykle bývá výhodnější si udělat u truhláře kuchyňskou linku, zabudovanou skříň na míru (truhlář si řekl v průměru u obojího to vyšlo na cca 10tis.Kč za metr, ve studiu chtěli za linku 2x tolik), dveře, to ostatní už brát raději z obchodů typu Ikea jako obytné stěny, skříňky a amostatně stojící skříně a postele, protože tam je vysoká variabilita zboží a ceny nízké při dostatečné kvalitě a designu truhlářem nedostižné. K celkové ceně rekonstrukce jen řeknu záleží jak se rozšoupnete a jak si pohlídáte firmy, řemeslníky, je třeba ceny porovnávat a nebát si ceny prověřit jinde. My jsme si nechali udělat na podlahu vinyl skoro po celém bytě za 50tis.Kč před lety a ted kamarádka přišla s tím, že by to samé chtěla taky a firma, na kterou narazila by to udělala za 160tis.Kč.
 celková cena rekonstrukce v základu bez spotřebičů min. 300tis.Kč obvykle bývá výhodnější si udělat u truhláře kuchyňskou linku, zabudovanou skříň na míru (truhlář si řekl v průměru u obojího to vyšlo na cca 10tis.Kč za metr, ve studiu chtěli za linku 2x tolik), dveře, to ostatní už brát raději z obchodů typu Ikea jako obytné stěny, skříňky a amostatně stojící skříně a postele, protože tam je vysoká variabilita zboží a ceny nízké při dostatečné kvalitě a designu truhlářem nedostižné. K celkové ceně rekonstrukce jen řeknu záleží jak se rozšoupnete a jak si pohlídáte firmy, řemeslníky, je třeba ceny porovnávat a nebát si ceny prověřit jinde. My jsme si nechali udělat na podlahu vinyl skoro po celém bytě za 50tis.Kč před lety a ted kamarádka přišla s tím, že by to samé chtěla taky a firma, na kterou narazila by to udělala za 160tis.Kč.
Tak jen abych toto téma uzavřel a trošku se i pochlubil. Jak je v originálním postu, že jsem rekonstrukci nikdy neřešil, tak podám jen info, jak to probíhalo u mě. Třeba někomu pomůže, popřípadě se inspiruje.
Byt do svého vlastnictví jsem nakonec získal až v srpnu (byl koupen z exekuce a různé průtahy od katastru a exekutora), pak skoro půl roku vyřízení hypotéky, teprv v lednu jsem měl peníze na účtě a začal řešit firmu na rekonstrukci. Tady velký pozor, už jsem měl dohodnutou firmu, ale posléze jsem zjistil, že můžou až v polovině/konec března, což bylo pro mne nevyhovující. Takže jsem našel jinou firmu, která mohla v půli února. Rekonstrukce bude končit před Velikonoci - viz příloha.
Co se týká elektroniky, tak tu jsem vysoutěžil. Oslovil jsem 10 eshopů, včetně nějakých kamenných obchodů u nás ve městě, ať mi navrhnou dané spotřebiče. Vždy jsem napsal co chci a ať mi k tomu navrhnou konkrétní model viz:
- Lednice - kombinovaná (mrazák dole), volně stojící. Šířka max. 60 cm, hloubka + výška co největší, nejlépe černá, nebo tmavě šedá/nerez, nofrost
- Indukční deska - 4 plotny, vestavná, černá
Odpovědělo 6 eshopů a nakonec jsem vybíral ze tří nabídek. Vyhrál datart, který mi navrhl vše v jedné značce elektrolux, navíc poskytl jednorázovou 5% slevu + dovoz a instalaci zdarma. Navíc na produkty, kde mám 5 let záruky mi dal další slevu 6%. Celková sleva z částky 125tis je 15tis + zmíněný dovoz a instalace v 3 patře bez výtahu grátis. Ověřeno přes heruéku, že spotřebiče mají opravdu nejnižší cenu.
Co se týká nábytku, tak budu řešit se stolařem, který bude dělat i kuchyň.
Vybírat podle nejnižší ceny asi do budoucna nebyl dobrý krok.
nene, já to asi špatně napsal. Jedná se o nejlevnější cenu na trhu, respektive na heruéce. Konkrétně lednice EN3853MOX, kterou na heruéce lze sehnat za 12 990,- tak já ji mám za 11 296,- včetně záměny dveří (potřebuju levé).
Ty asi pravidelně poradnu už nenavštěvuješ, že. Kozakl je teoretický google všeznáč
 je samozřejmě poznat i cena, když si člověk dá práci oslovit "pár" firem...U mě byla zajímavá např. myčka nádobí, doporučená prodejní cena 26.990, nejnižší cena v Eshopech 17.000 (v těch bych ji ale ani tak nekoupil), cena pro nás 10.500, ale na těch nabídkách bylo zajímavé, jak v podstatě všichni kopírovali (relativní) výši slev jednotlivých značek, např. na spotřebiče od Siemensu slevu nikdo nedal větší než pár stováků (ale i tak jasná volba)
 je samozřejmě poznat i cena, když si člověk dá práci oslovit "pár" firem...U mě byla zajímavá např. myčka nádobí, doporučená prodejní cena 26.990, nejnižší cena v Eshopech 17.000 (v těch bych ji ale ani tak nekoupil), cena pro nás 10.500, ale na těch nabídkách bylo zajímavé, jak v podstatě všichni kopírovali (relativní) výši slev jednotlivých značek, např. na spotřebiče od Siemensu slevu nikdo nedal větší než pár stováků (ale i tak jasná volba)
Tak dobrá práce, měl jsem to loni taky, dělal jsem to postupně od návrhu po realizaci všechno sám (mimo kuchyně od truhláře na míru-ale podle mého návrhu a instalatérských prací, do toho jsem se vrtat nechtěl) a kromě výsledné kvality (pochvala i od sádrokartonářů za strop, z toho jsem měl strach
Koukám že jsi použil na návrh Sweethome...tak jsem si aspoň hezky zavzpomínal na loňský rok, slzící smajlík.
JJ, návrhy a veškeré obíhající věci (statik, projekt,...) a demolici jsem řešil sám - trhání lina, škrábání omítek, futra, umakartové jádro a následný odvoz do sběrných surovin (fuj, ještě teď mi je zle ). Bohužel, mé levé ručičky by toto zrealizovat nedokázaly a hlavně časově bych to nedával, takže to mám dražší.
 ). Bohužel, mé levé ručičky by toto zrealizovat nedokázaly a hlavně časově bych to nedával, takže to mám dražší.
S tou elektronikou je to pravda, ceny jsou všude +- stejné, ale datart to vyhrál díky jeho přístupu a hlavně se nad tou nabídkou zamyslel. Někdo tam jen naházel věci, co mají v akci a víc neřešili. Navíc zdarma vynesení do třetího patra, to asi taky nikdo moc nenabídne (chudáci chlapi - ale občerstvení dostanou).
Jak ty ses dostal na cenu za myčku o 60% níže, tak to je velký fígl, to bych šel snad i do miele
Je z tebe poznat radost z dobře odvedené práce
Na tu cenu jsem se dostal náhodou, už jsem měl vítěze, ale když si byli truhláři zaměřit kuchyň, zmínil se, že jsou schopni to dodat přes jejich dodavatele, tak se nabídl, že udělá nabídku - celkově byla asi o tisícovku nižší než můj vítěz, takže většina věcí mírně vyšší cena, ale ta myčka (3T133) tam vybočovala o dost dolů a truhláři to v rámci kompletace kuchyně osadili.
Jinak nad mentalitou některých prodejců mi bylo šoufl - např. frajer z OKAY mi na férovku napsal, že výrobky (poptával jsem konkrétní)se už neprodávají a přepsal mi spotřebiče ze Siemensu, Bosche a Whirlpoolu(ehm) na Beko a Moru, vůbec mu nevadilo, že např. varnou desku mám zvolenou kombinaci indukce s klasikou, prcnul tam nejlevnější indukci a ještě vítězoslavně napsal, že mi ve výsledku ušetřil peníze.
Mě z Okay jen napsali, ať se za nimi stavím na prodejnu, že to probereme osobně. Když jsem jim napsal, že na toto nemám čas, že mají 14 dní na sestavení nabídky na konkrétní modely a ať to zašlou mailem, tak už se neozvali :).
Ale jinak k té radosti, ta je obrovská. Sice to sežralo o hodně více peněz než jsem čekal, ale už teď jak jdou vidět ty výsledky, omítky, koupelna ta je úplný mazec, obrovská vestavná ložnicová skříň (340*245*55) co jsme se stolařem vymysleli, příští týden už začnou podlahy a radiátory včetně nové mědi ... no jak to finišuje, tak odpoledne si jdu jen tak do bytu, otevřu si pivko a koumám to, jak je to krásné. Navíc na konci června přibude malá Verunka (první), tak se to tak pěkně schází ty radosti života.
Že nejsou peníze? Bydlet máme kde, jíst máme co a jsme zdraví a navíc bydlíme ve vlastním a krásném :) ....