
Stand by zapojení ve schématu...co s tím?
Chci si postavit zesilovaš s TDA 7294 a chtěl bych to zapojit podle ovárního schématu od sestavy Genius ale nevím co si mám počít se stand by zapojením...mám ty vývody nechat nezapojené nebo zapojit na napájenípodle schématu který je na obrázku??? děkuji za každou radu...
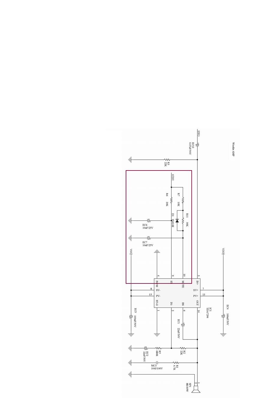
Aby standby, nebo mute fungovalo, musí se někam zapojit, buď na zem, nebo na napájení. Pokud by se to zapojovalo na zem, nebylo by tam třeba těch pomocných součástek.
![[TDA7294_60w_1.gif]](http://electronics-diy.com/schematics/340/TDA7294_60w_1.gif)
Takže se to zapojuje na napájení, vidět je to krásně na tomto schématu:
Jen nevím, jestli to musí být pro funkci zapojený, nebo rozpojený. Kdysi jsem to věděl, protože jsem s taky chtěl stavět zesilovač právě s tímto obvodem, takže jsem si to trochu nastudoval. Ale nakonec z toho sešlo a použil jsem TDA 1514.
A jen pro info - mute jen odpojí koncový tranzistory, takže obvod je stále vybuzen, standby to celý uspí do pohotovosti s minimální spotřebou.