
Položení koberce
Dobrý den,
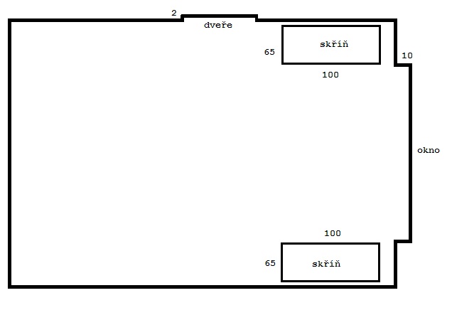
budu poprvé pokládat koberec. Poradili byste mi, prosím, jak nejefektivněji ho položit? Přikládám obrázek pokoje, kde jsou 2 výklenky a to u dveří a okna, a také pod skříni koberec nechci. Nejsem si jistá, jak to udělat, jestli rozstřihnout na pruhy a pak načesat, nebo vyřezat jen ty části a mít koberec jako celek.
Děkuji za každou radu.
Nás teď taky čeká pokládání koberce - po zkušenostech s tím původním chceme všechno v jednom kuse ode zdi ke zdi i pod nábytkem.
Mám koberce v jednom kuse i jeden spojovaný. Po zkušenosti - příště jen v jednom kuse.
Též bych překonal lenost a skříně zvednul/přesunu a dal koberec všude. Ořezávat to okolo bude piplačka a trefit to tak, aby to bylo přesně bude taky piplačka. A navíc to bude hnusný, protože se to tam může třepit a zvedat.
Skříně mám staršího typu čili pořadné dřevo a ne dřevotříska z čeho se to dnes vyrábí, a proto je to velmi těžké na zvedání :/
Tož si na to budete muset pozvat pořádný chlapy. Opravdu to vypadá hnusně, když je to ořezaný okolo, poleze pod to prach, při vysávání se to bude uvolňovat a časem to bude vytahaný jak dětská košilka.
Docela bych si tipl, že skříně z masívu budou lehčí. Dřevotříska je pekelně těžká jako kráva.
Hádám to na takový ty překlížený desky, takový ty co se lepily vrstvy dýhy kolmo na sebe. To je taky plný lepidla a je to vcelku těžký. To bude asi ta laťovka, jak píše Henessy níže.
Jinak k dřevotřísce - jo, je to těžký, stačí mi, když si musím tahat ručně matroš na skříně do třetího patra.
Takže Co se týče dřeva Návytek se nevyrábí více než 100 let tz masivu s výjimkou tzv rustikálního, nebo chcete li selského nábytku. Vyráběl se z laťovky, to je vedle sebe poskládaných, sklížených prkýnek z měkkého dřeva. Na tyto se naklážíla tzv. poddýžka, rovněž z měkkého dřeva. Na vrchní vrstvy se používala dýha z kvalitních a exotických dřevin. Tato se získávala řezáním a nebo loupáním (jako když se škrabkou loupou brambory.)Při použití levných dýh se provádělo fládrování (barvou napodobování dřeva.)
V současné době se používají různé druhy dřevotřískových desek, které byly z počátku kryty pravou dýhou, v současnosti pak fototapetou.
No a ke koberci - pokud možno v kuse zaříznout u skříní a výklenků. Dobrý lámací nůž a příložník pokud možno železný.
Nevím jaký koberec budete kupovat, ale v dnešní době je většina střední cenové hladiny lepená a dokáže to každý zručný kutil. Oceníte to i při dalším malování, či výměně za nový. Nejedná li se o bytovou stěnu ale jen dvě sříně, pak bych dal skříně pryč a v kuse.Pokud je vyklidíte tak není problém s váhou.
Nedávno jsem koupil v Ikei dvě komody. Jejich hlavním trumfem je to, že povrchová úprava je opravdová dýha, konkrétně březová. Žena se divila, že to má na povrchu občas nějakou tečku, nebo jiný, přirozený, kaz. No to je tou dýhou.
Ale v místech, kde to není z venku vidět, konkrétně vnitřní strana čela šuplíku je už jen obyčejná papírová tapeta. Holt je to uděláno pěkně, ale s maximální úsporou.
Na omak je to však opravdový dřevo a pěkně to voní.
Hádám, že dýhovaná dřevotříska bude pro běžný prodej asi dost drahej matroš.
Ono pamětníci se nestačí divit. Pro tvé rozšíření obzorů.
Byla doba, kdy se natíraly chromované nárazníky a ramínka stěračů černým tabulovým lakem, aby vypadaly jako plast. Dnes je nejvyšší trumf chrom, ale kovový!Zesilovače a věže byly ze dřeva a niklu, chromu, pravé dřevo. Pak nastoupil černý plast, nyní opět chrom.

Kalkulačky se zmenšovaly až byly tenoučké a v hodinkách tak malé že jsi musel volit špičkou tužky. Nyní opět co největší, aby byly pohodlné.Vlněné obleky a kabáty se vyhazovaly a kupovaly se lamináty a tesil.
Umělý duběňák byl lepší než pravý atd.
Jen tak pro zajímavost, když se vyráběl nábytek Universal, tak byl dýhovaný pravou dýhou, ta se pak nastříkala barvou a na ni se natiskla válcem struktura let, aby byla každá skříňka stejná.A v ložnici se čuchá k ženě a ne ke skříni. Co kdyby v ní byl soused.
Universal znám, ten jsem měl jako děcko v pokoju, šuflátkový skříňky mi donedávna sloužily jako noční stolky.
A po rodičích jsem z obýváku zdědil nábytek, který měl mahagonovou dýhu. Teď nevím, jestli to byl jen potisk, nebo opravdu mahagon. Ono je to nakonec jedno, protože jsme to s manželkou natřeli veselýma barvama a máme z toho nábytek k synkovi do pokoja